Баня из кело 4×4 м — компактный проект «Сосьва» с парной 8 м²

Описание

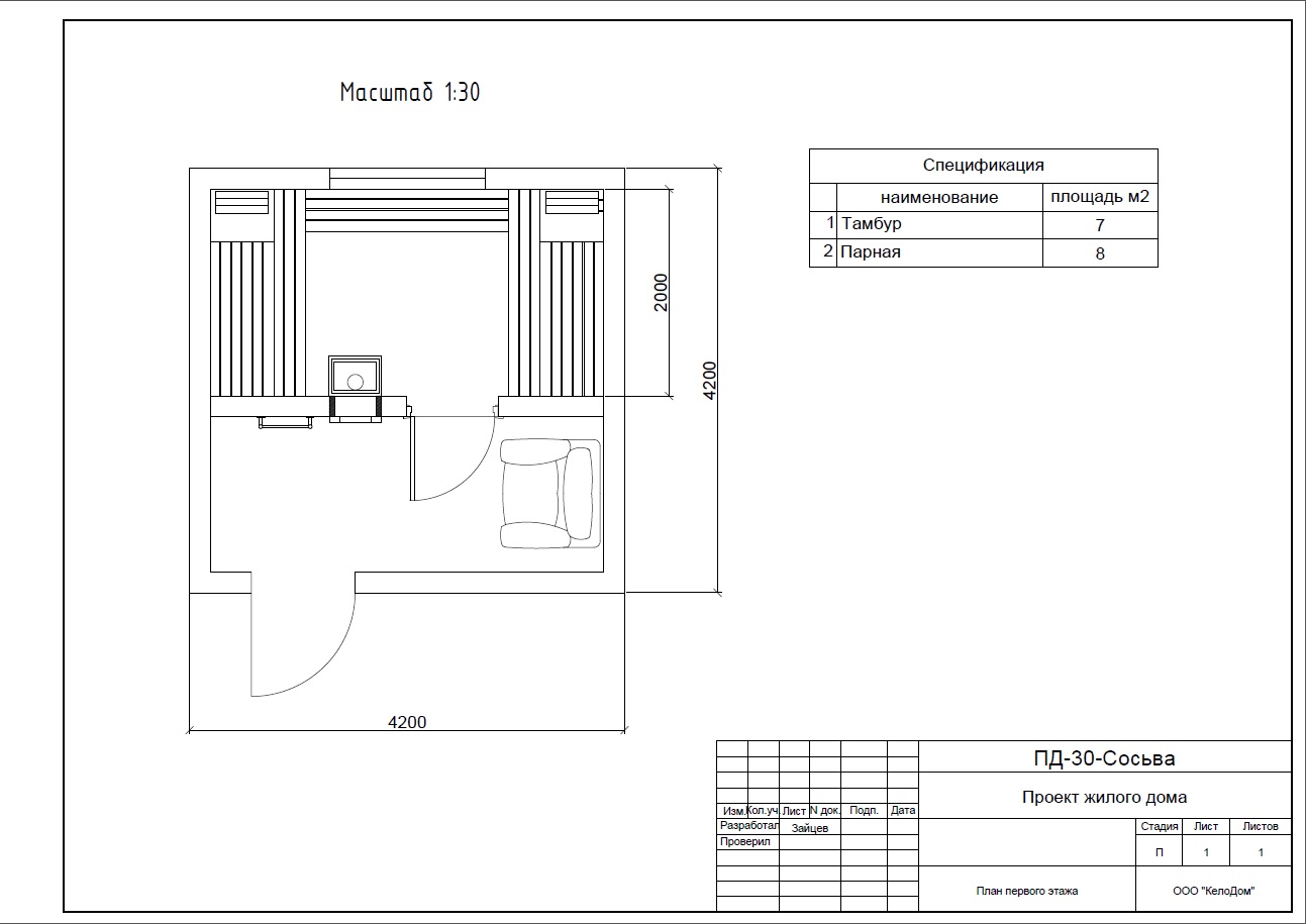
Проект компактной бани из кело размером 4,2×4,2 м — практичное решение для частного использования, гостевых домов и небольших СПА-комплексов. Планировка включает тамбур площадью 7 м² и просторную парную 8 м², что обеспечивает комфортное размещение и эффективное использование пространства. Благодаря компактным габаритам проект подходит для небольших участков и может быть реализован в короткие сроки. Оптимальный вариант для тех, кто ищет недорогую баню из кело под ключ с продуманной планировкой и качественной сборкой.

Параметры

Цена 450000.00 ₽
Срок 30 дней
Площадь 16 м²